3 BHK House Electrical Layout Plan CAD Drawing DWG File
Description
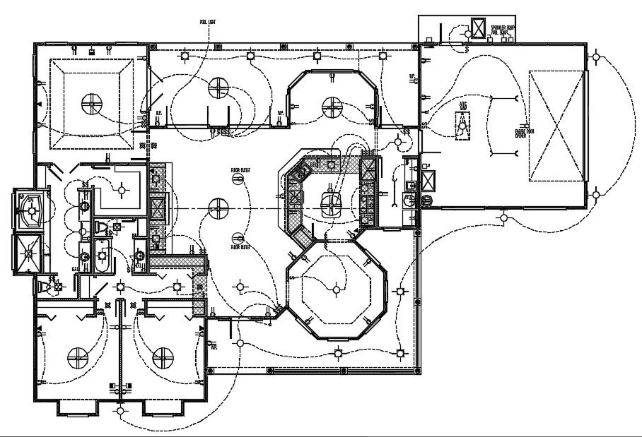
The electrical house layout plan CAD drawing that shows all light fixtures shown centered on reflected ceiling plan to be located centered on site, some light fixtures to have dimmer, confirm with interior design consultant prior to switch installation and dimensions are
taken from center of light fixtures. download 2 BHK house electrical layout plan DWG file.
File Type:
DWG
File Size:
251 KB
Category::
Electrical
Sub Category::
Electrical Automation Systems
type:
Gold
Uploaded by:

