20X9 Meter Apartment Building Section And Front Elevation Design DWG File
Description
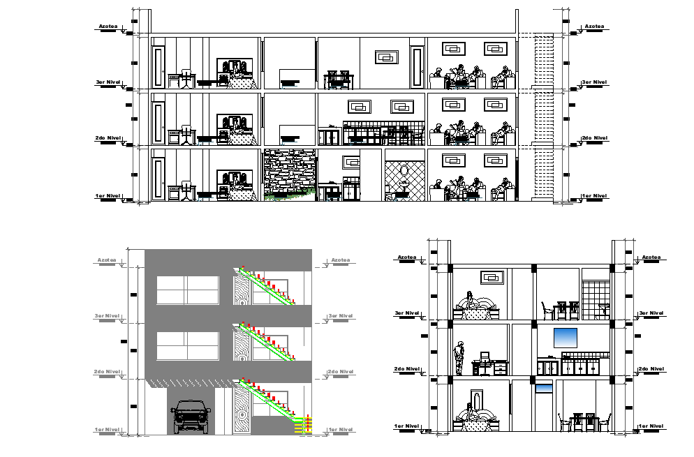
The residence apartment building section CAD drawing and front elevation design that shows 3 storey floor level building model design which consist 3 BHK and 4 BHK plan. the length and breadth of the plan is 20m and 9m respectively. Thank you for downloading the AutoCAD file and other CAD program from our website.
Uploaded by:

