LOGIN
HOME
CATEGORIES
UPLOAD FILE
PRICING
HOUSE PLAN
ABOUT US
CONTACT US
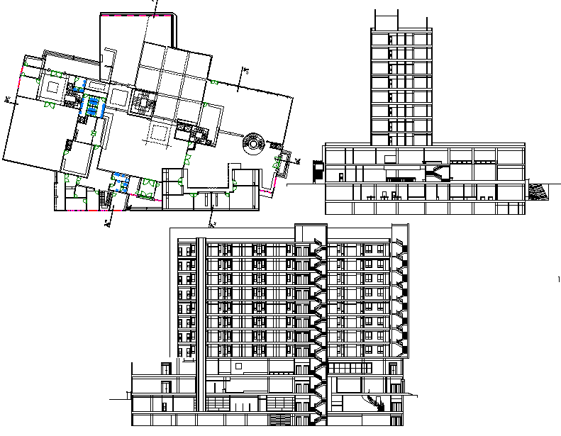
High Rise Building Project
Home
Categories
Architecture
High Rise Building
High Rise Building Project
Uploaded by:
Priyanka
Patel
View Profile
View Profile
Description
High Rise Building Project. This Drawing elevation Design in Autocad file & Type of shopping centre, bussness centre building etc.
File Type:
DWG
File Size:
1.1 MB
Category::
Architecture
Sub Category::
High Rise Building
type:
Gold
Uploaded by:
Priyanka
Patel
View Profile
Download
Add to libary
find Latest
Related
Files