2D autocad drawing file has the details of college plan. Download the Autocad file.
Description
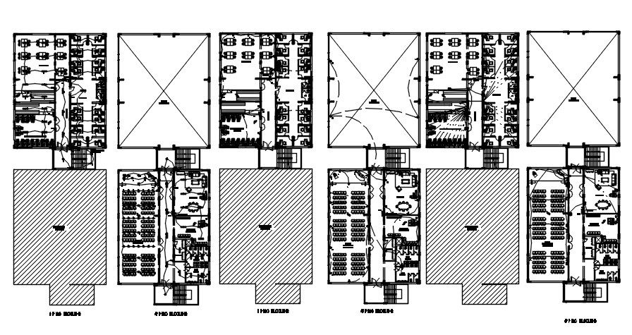
2D autocad drawing file has the details of college plan. This is engineering college building plan. Virtual resources room, hemeroteca, cubiculos, conference room, meeting room, rest room for male & female, registration of participants, and reception are mentioned in this drawing model. For more details download the autocad drawing file. Thank you for downloading the autocad drawing file and other cad program files from our website.
Uploaded by:

