200 Square Meter Apartment Building Sectional Elevation AutoCAD Drawing Download DWG File
Description
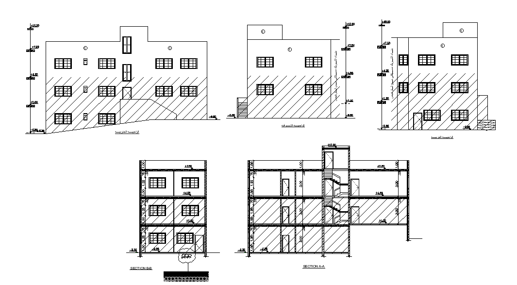
20X10 meter plot size of 3 storey apartment building front view and side view elevation design and section drawing that shows building structure design, door window marking, RCC slab and 12 meter total height of apartment building. Thank you for downloading the Autocad file and other CAD program files from our website.
Uploaded by:

