Commercial building electrical floor plan separated in this file. Download this 2d autocad drawing file.
Description
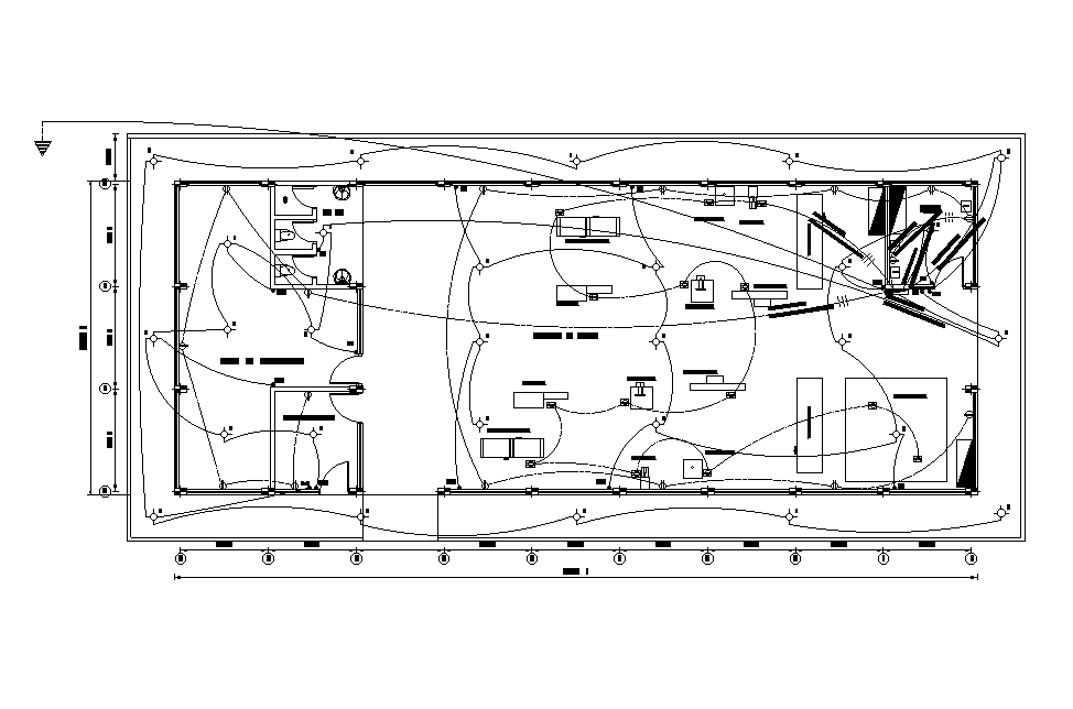
Commercial building electrical floor plan separated in this file. The electrical wiring house layout plan CAD drawing that shows the public network to the meter (ensa) go up the circuit to third-level detail, also has intercom button, meter bench, earth well (see detail) 1x10mm detail DWG file. Thank you for downloading the AutoCAD file and other CAD programs from our website.
File Type:
3d max
File Size:
779 KB
Category::
Electrical
Sub Category::
Interior Design Electrical
type:
Gold
Uploaded by:

