Architecture Office Building Floor Plan AutoCAD Drawing Download DWG File
Description
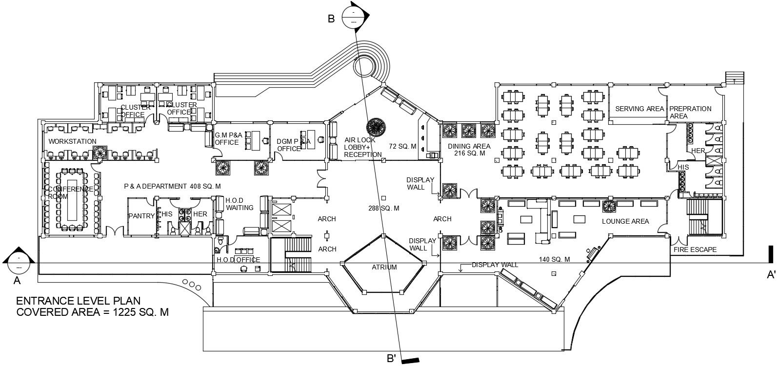
The architecture corporate office building floor plan CAD drawing that shows working station, pantry, store room, cluster office, setting informal meeting, conference room, office cabin, cafeteria, lounge area and finance admin office with all furniture detail. also has given detail about total coverage area 1225 square meter. Thank you for downloading the Autocad files and other CAD program files from our website.
Uploaded by:

