Corporate Building Floor Plan Drawing Download DWG File
Description
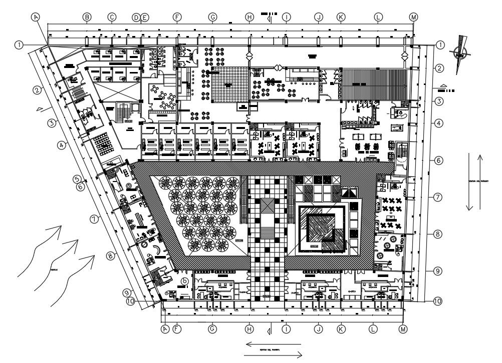
The corporate building floor plan CAD drawing includes administration office, cafeteria, games room, shop, library, counter bars, public toilet, and ramp way with all furniture design. the total 78X55 meter with center line dimension detail in dwg file. Thank you for downloading the AutoCAD drawing file and other CAD program files from our website.
Uploaded by:

