Drawing of office design with elevation and section in AutoCAD
Description
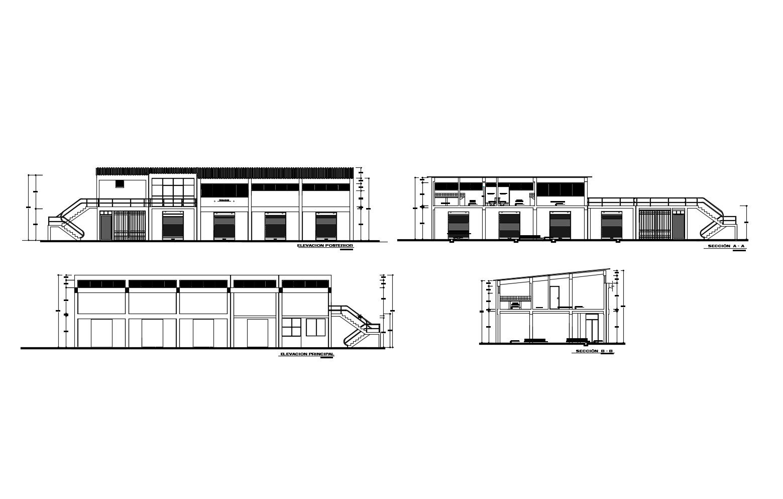
Drawing of office design with elevation and section in AutoCAD which provide detail of front elevation, back elevation, detail of floor level, etc.

Uploaded by:
Eiz
Luna

Uploaded by:
Luna