Apartment Building AutoCAD Section Drawing Download DWG File
Description
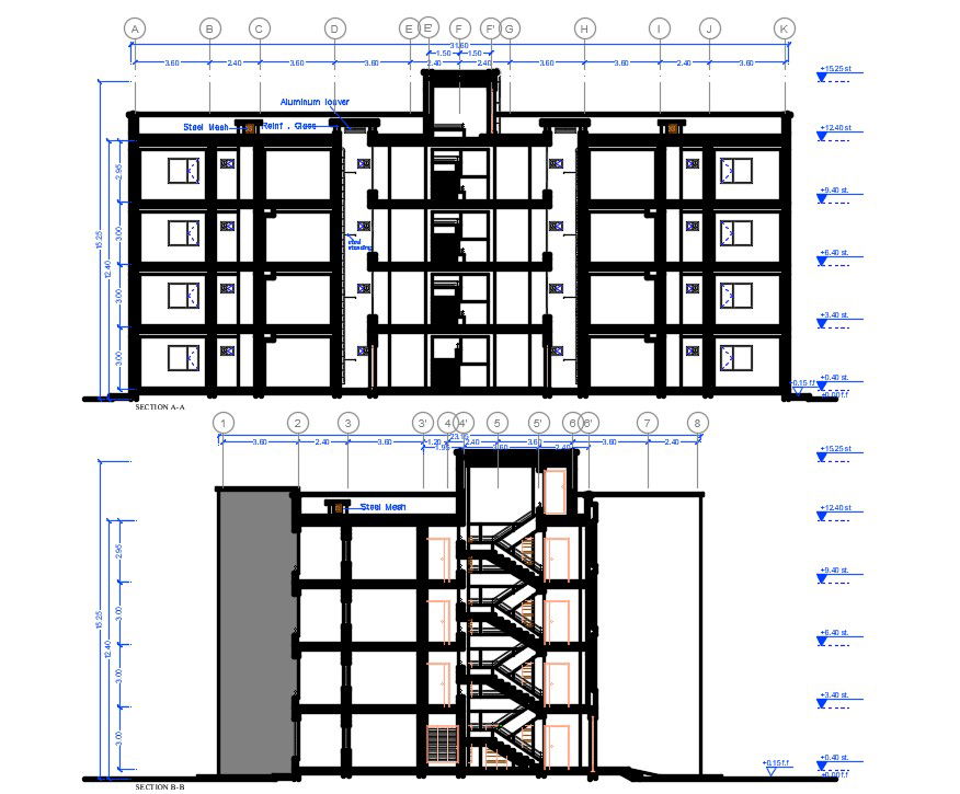
The residence apartment building section CAD drawing includes 4storey floor level building model structure design, standard staircase, precast concrete coping, window steel handrail, gallery and total 13.70-meter height with center line detail in dwg file. Thank you for downloading the AutoCAD drawing file and other CAD program files from our website.
Uploaded by:

