13x14m house plan of the column reinforcement

13x14m house plan of the column reinforcement
Profile

Uploaded by:

Meera

Description
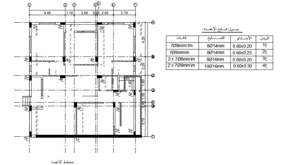
13x14m house plan of the column reinforcement is given in this file. The reinforcement derails are given in the table. For more details download the AutoCAD drawing file.
Profile

Uploaded by:

Meera

find Latest

Related Files

WhatsApp Chat