LOGIN
HOME
CATEGORIES
UPLOAD FILE
PRICING
HOUSE PLAN
ABOUT US
CONTACT US
Typical Foundation Column Design Free Download
Home
Categories
Construction
Column Details
Typical Foundation Column Design Free Download
Uploaded by:
Komal
View Profile
View Profile
Description
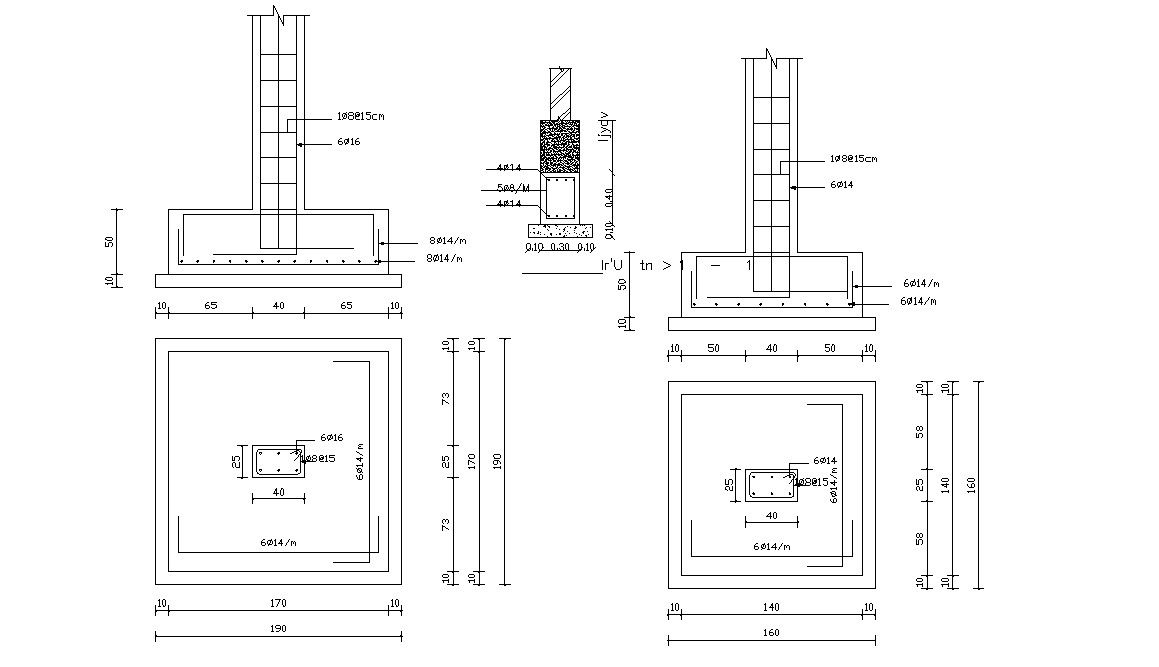
RCC construction drawing of reinforced column footing foundation design with pier column section footing design. download free DWG file of foundation design.
File Type:
DWG
File Size:
869 KB
Category::
Construction
Sub Category::
Column Details
type:
Free
Uploaded by:
Komal
View Profile
Download
Add to libary
find Latest
Related
Files