LOGIN
HOME
CATEGORIES
UPLOAD FILE
PRICING
HOUSE PLAN
ABOUT US
CONTACT US
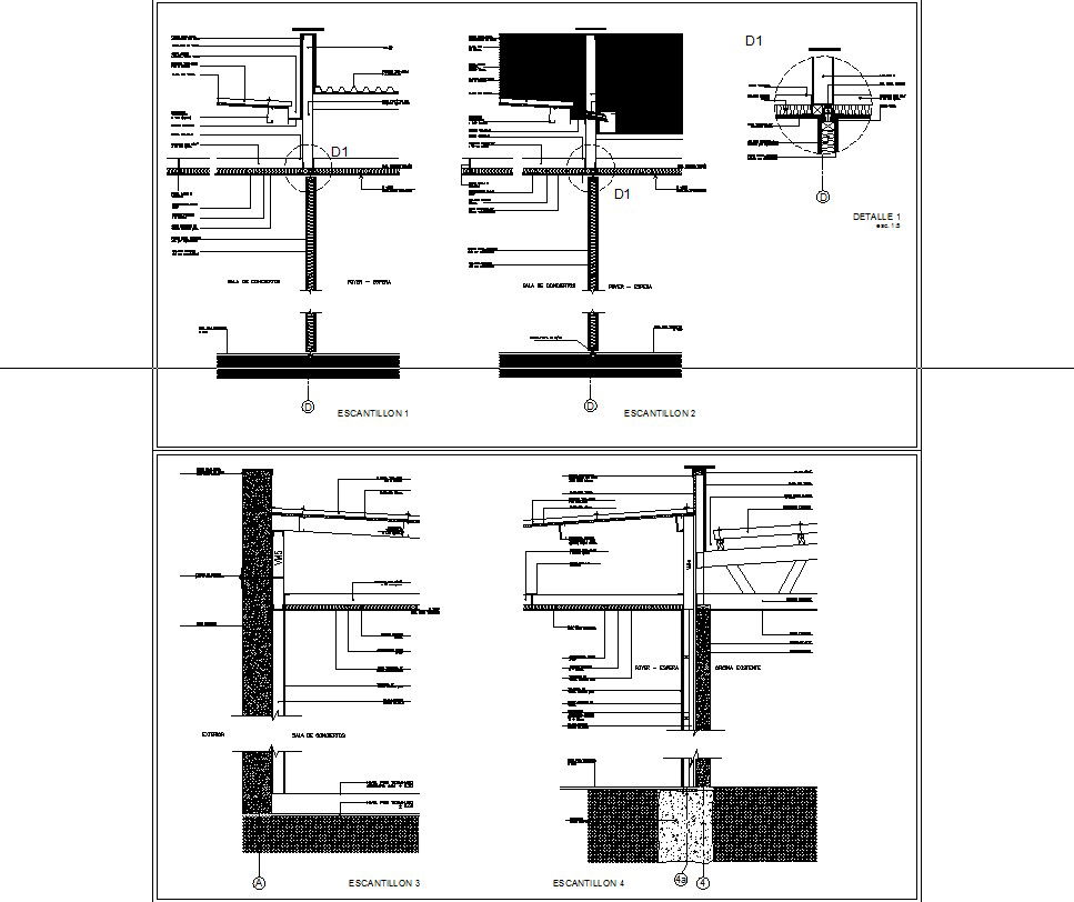
Construction detail of acoustics sliding door
Home
Categories
Details
Construction Details
Construction detail of acoustics sliding door
Uploaded by:
apurva
munet
View Profile
View Profile
Description
Here is the detailed autocad dwg of construction detail of acoustics sliding door with its detail plan and elevations.
File Type:
DWG
File Size:
74 KB
Category::
Details
Sub Category::
Construction Details
type:
Gold
Uploaded by:
apurva
munet
View Profile
Download
Add to libary
find Latest
Related
Files