LOGIN
HOME
CATEGORIES
UPLOAD FILE
PRICING
HOUSE PLAN
ABOUT US
CONTACT US
House structure
Home
Categories
Architecture
House Plan
House structure
Uploaded by:
apurva
munet
View Profile
View Profile
Description
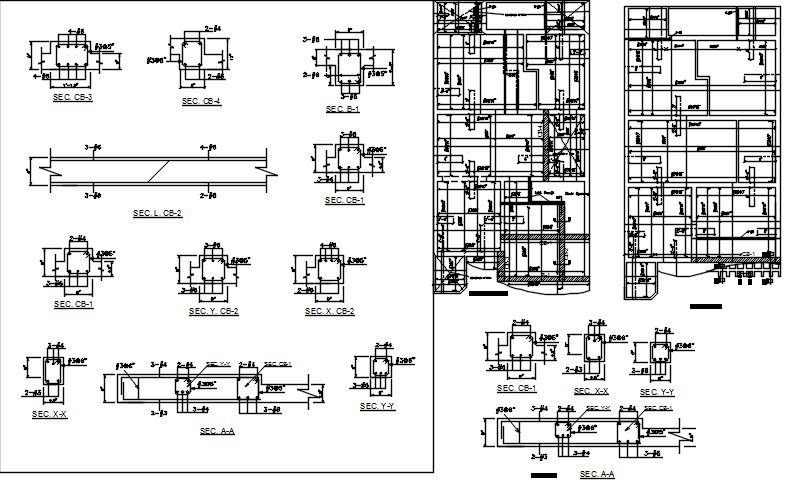
Here is the autocad dwg of house structure,detail floor plan of house,site plan and section of walls.
File Type:
DWG
File Size:
246 KB
Category::
Architecture
Sub Category::
House Plan
type:
Free
Uploaded by:
apurva
munet
View Profile
Download
Add to libary
find Latest
Related
Files