LOGIN
HOME
CATEGORIES
UPLOAD FILE
PRICING
HOUSE PLAN
ABOUT US
CONTACT US
Trading warehouse islamabad
Home
Categories
Architecture
Industrial Plant
Trading warehouse islamabad
Uploaded by:
apurva
munet
View Profile
View Profile
Description
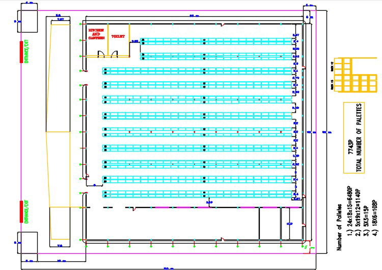
Here is the autocad dwg of trading warehouse,proper detail plan of warehouse with palettes detail plan.
File Type:
DWG
File Size:
473 KB
Category::
Architecture
Sub Category::
Industrial Plant
type:
Free
Uploaded by:
apurva
munet
View Profile
Download
Add to libary
find Latest
Related
Files