LOGIN
HOME
CATEGORIES
UPLOAD FILE
PRICING
HOUSE PLAN
ABOUT US
CONTACT US
Factory
Home
Categories
Architecture
Corporate Building
Factory
Uploaded by:
viddhi
chajjed
View Profile
View Profile
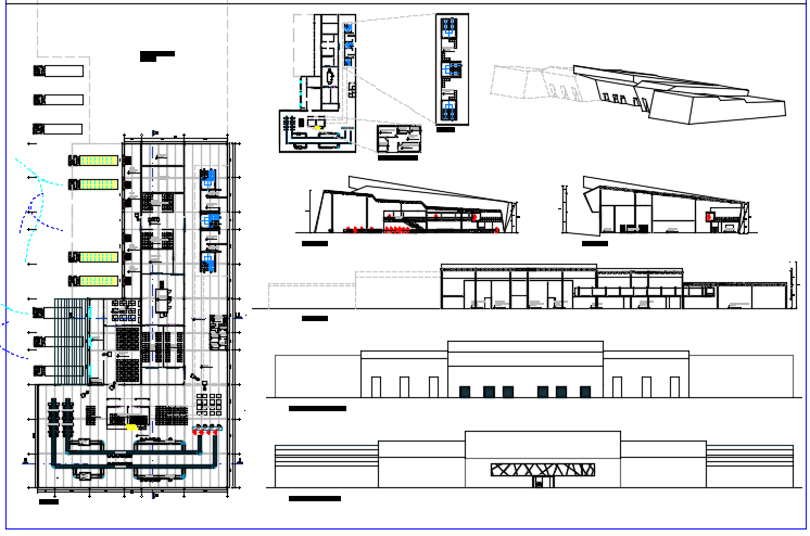
Description
Factory layout plan dwg file, layout plan of a Factory with various floors, elevation design of Factory in auto cad format.
File Type:
DWG
File Size:
556 KB
Category::
Architecture
Sub Category::
Corporate Building
type:
Gold
Uploaded by:
viddhi
chajjed
View Profile
Download
Add to libary
find Latest
Related
Files