LOGIN
HOME
CATEGORIES
UPLOAD FILE
PRICING
HOUSE PLAN
ABOUT US
CONTACT US
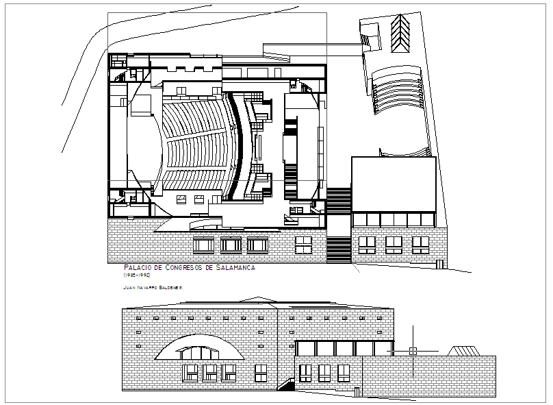
Building design for congress
Home
Categories
Architecture
Government Building
Building design for congress
Uploaded by:
Liam
White
View Profile
View Profile
Description
Building design for congress dwg file with in-out way,seating area for conference, staircase,door and window view in elevation,distribution of area,entry way.
File Type:
DWG
File Size:
232 KB
Category::
Architecture
Sub Category::
Government Building
type:
Gold
Uploaded by:
Liam
White
View Profile
Download
Add to libary
find Latest
Related
Files