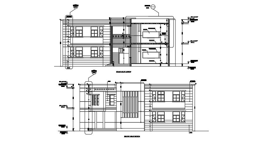
Front and rear elevation of school.
Description
This Architectural Drawing is Front and rear elevation of school. Front elevation refers to the side of the house which includes the entrance door, windows or front porch. This may be the side of the house that faces the road or has a front yard. This is sometimes known as the 'entry elevation'. The 'rear elevation' is the elevation opposite the principal elevation. Side elevations link the principal and rear elevation. the height to which something is elevated: such as. a : the angular distance of something (such as a celestial object) above the horizon. b : the degree to which a gun is aimed above the horizon. c : the height above the level of the sea : altitude. For more details and information download the drawing file.

Uploaded by:
Eiz
Luna

