Sectional Elevation Of a residential.
Description
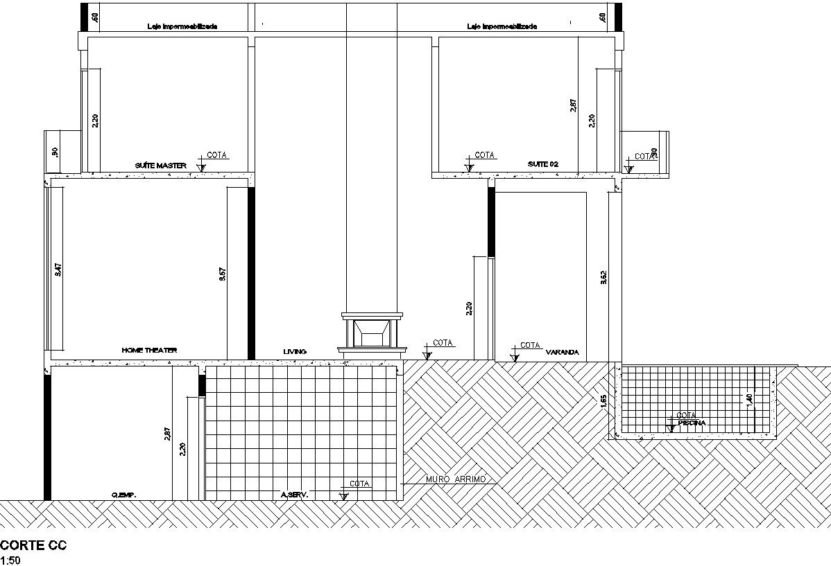
This Architectrural Drawing is AutoCAD 2d drawing of Sectional Elevation Of a residential. A sectional view represents the part of an object remaining after a portion is assumed to have been cut and removed. The exposed cut surface is then indicated by section lines. Hidden features behind the cutting plane are omitted, unless required for dimensioning or for definition of the part. The view obtained after removing the front half portion of an object is called a Full Sectional Views or Front Sectional Views or Simply Sectional Elevation. When the cutting plane cuts the object lengthwise, full sectional front view is obtained. It is also called longitudinal section. For more details and information download the drawing file.

Uploaded by:
Eiz
Luna

