Office Building

Description
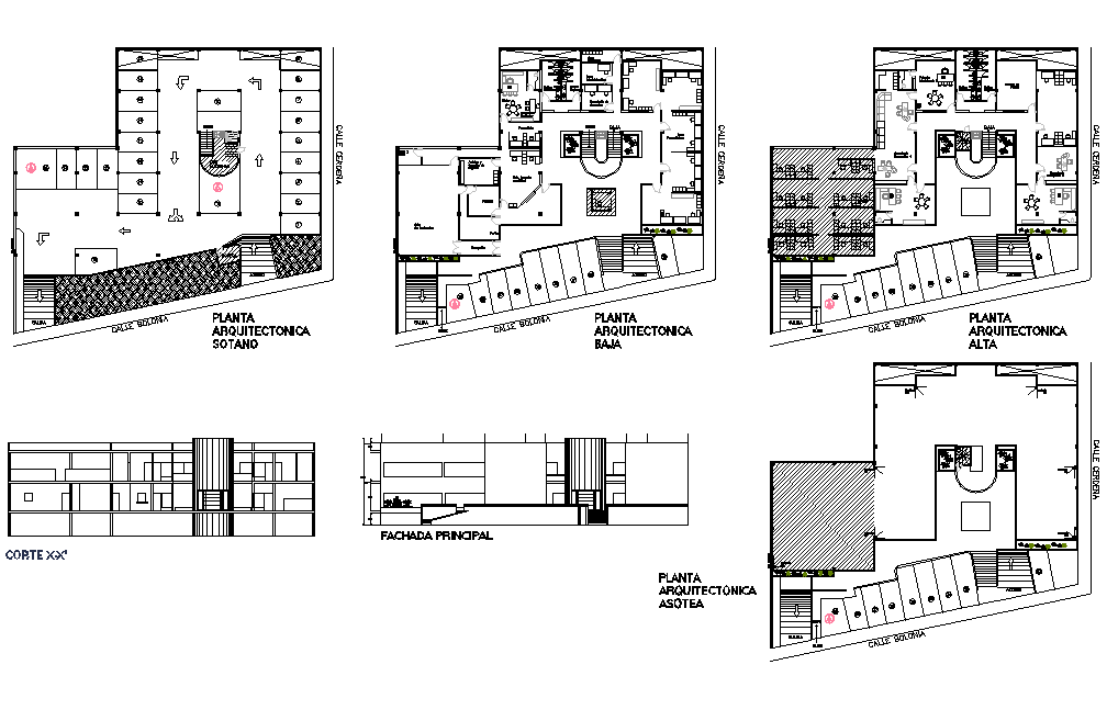
Office Building, architecture layout, sectional plan, floor plan, furniture layout, sectional elevation of individual floor, exterior elevation, electrical layout, material and color specification.
Profile

Uploaded by:

find Latest

Related Files

WhatsApp Chat