2D drawing of footing layout plan in AutoCAD, dwg file, CAD file
Description
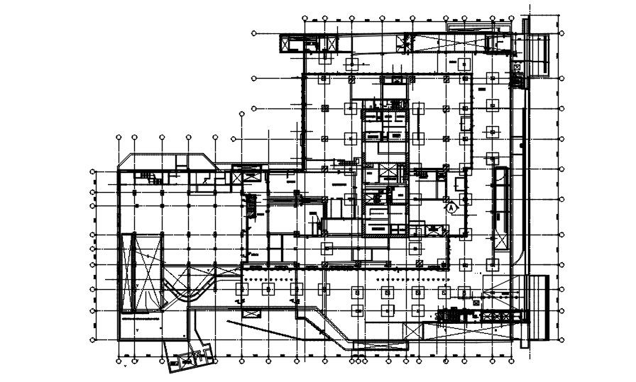
This architectural drawing is a 2D drawing of the footing layout plan in AutoCAD, dwg file, and CAD file. The portion of the foundation known as the footing is what transmits the load to a broader soil area. This area of the foundation really makes contact with the ground. For whichever settlement it is on, it secures the foundation. Typically, slabs or rebar are utilized as footing materials. For more details and information download the drawing file. Thank you for visiting our website cadbull.com.
Uploaded by:
viddhi
chajjed

