6x15m Three Story House Plan with Architecture CAD File
Description
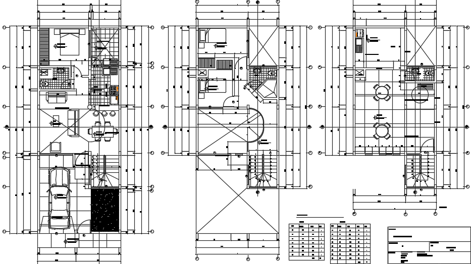
6x15m architecture three story house plan cad drawing is given in this file. This is a 3bhk house plan. On this ground floor, car parking, living room, kitchen, dining room, patio service, master bedroom, and garden are available. On this first floor, a passage, master bedroom, kid’s bedroom, and common bathroom are available. On this second floor, lavanderia, a table set, and a common bathroom are available.
Uploaded by:

