Plan and Section Details for Library and Office Area In DWG File
Description
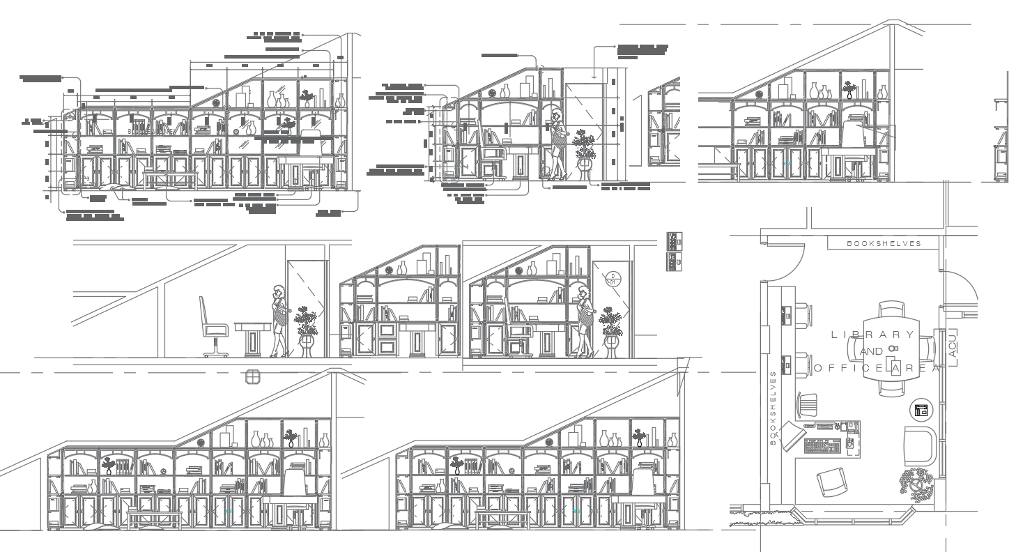
Explore the intricacies of the Library and Office Area with our comprehensive AutoCAD file, offering detailed plan and section details. This user-friendly CAD drawing provides an in-depth look into the layout and design of the library and office space, allowing you to visualise every aspect seamlessly. The DWG file ensures easy access to the plan and section details, making it a valuable resource for architects, designers, and enthusiasts alike. Uncover the nuances of the workspace through this meticulously crafted CAD file, enhancing your understanding of the Library and Office Area's spatial arrangement. Download now and delve into the world of efficient design with our thoughtfully created DWG file.
Uploaded by:
K.H.J
Jani

