North west facing house plan with elevation section and other details dwg autocad drawing .
Description
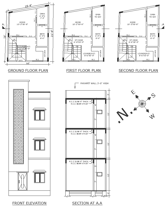
Discover the perfect fusion of form and function with our meticulously crafted AutoCAD drawing showcasing a North West facing house plan. Dive into our DWG files to explore plot details and site analysis, ensuring seamless integration with your project's vision. From furniture arrangements to elevation and section details, our designs prioritize comprehensive space planning and floor layout optimization, ensuring every aspect of your home is carefully considered. Delve deeper into our CAD drawings to uncover column intricacies and architectural facets, embodying the essence of urban design principles. Whether you're envisioning a cozy family retreat or a modern villa, our North West facing house plans cater to every aspect of contemporary living. Trust our expertise to deliver sophisticated designs that exceed expectations, fostering sustainable and vibrant communities. Unleash the potential of your project with our detailed and meticulously curated drawings, shaping the future of architectural excellence.

Uploaded by:
Liam
White

