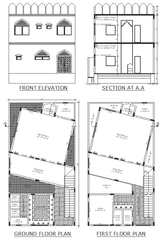
Mosque design with detailed plan section and elevation DWG autoCAD drawing
Description
Discover our meticulously crafted Mosque design presented in detailed AutoCAD drawings. Our design integrates seamlessly with urban landscapes, with careful consideration given to plot details and site analysis. From the intricate facade design to the thoughtful space planning, every aspect of the Mosque is meticulously detailed in our drawings. Whether you're an architect, urban planner, or designer, our DWG files provide valuable insights into temple architecture and mosque design. Elevate your architectural projects with our comprehensive Mosque design, complete with floor layout, column detail, construction detail, and more. Download our 2D AutoCAD files to bring your Mosque design visions to life and create sacred spaces that inspire and uplift communities.
Uploaded by:

