Office interior layout detailed plan section and elevation DWG autoCAD drawing
Description
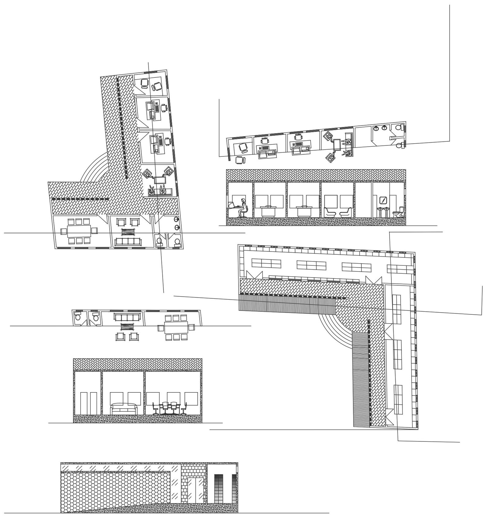
Experience the epitome of sophistication and functionality with our meticulously crafted office interior layout detailed plan, section, and elevation DWG AutoCAD drawing. Our design seamlessly integrates plot detail, site analysis, and space planning to create a workspace that fosters productivity and creativity. From the layout of luxurious living spaces to the intricate architecture details and facade design, every aspect of the office interior is meticulously considered. The DWG AutoCAD files provide a wealth of inspiration for architects, designers, and professionals seeking to elevate their projects. With a keen focus on urban planning and innovative design, our drawings offer valuable insights into creating efficient and aesthetically pleasing office environments. Whether you're designing a new office space or renovating an existing one, our drawings provide the perfect foundation for your project.
File Type:
DWG
File Size:
2.1 MB
Category::
Interior Design
Sub Category::
Corporate Office Interior
type:
Gold
Uploaded by:

