C shaped staircase plan section and elevation detail DWG autoCAD drawing
Description
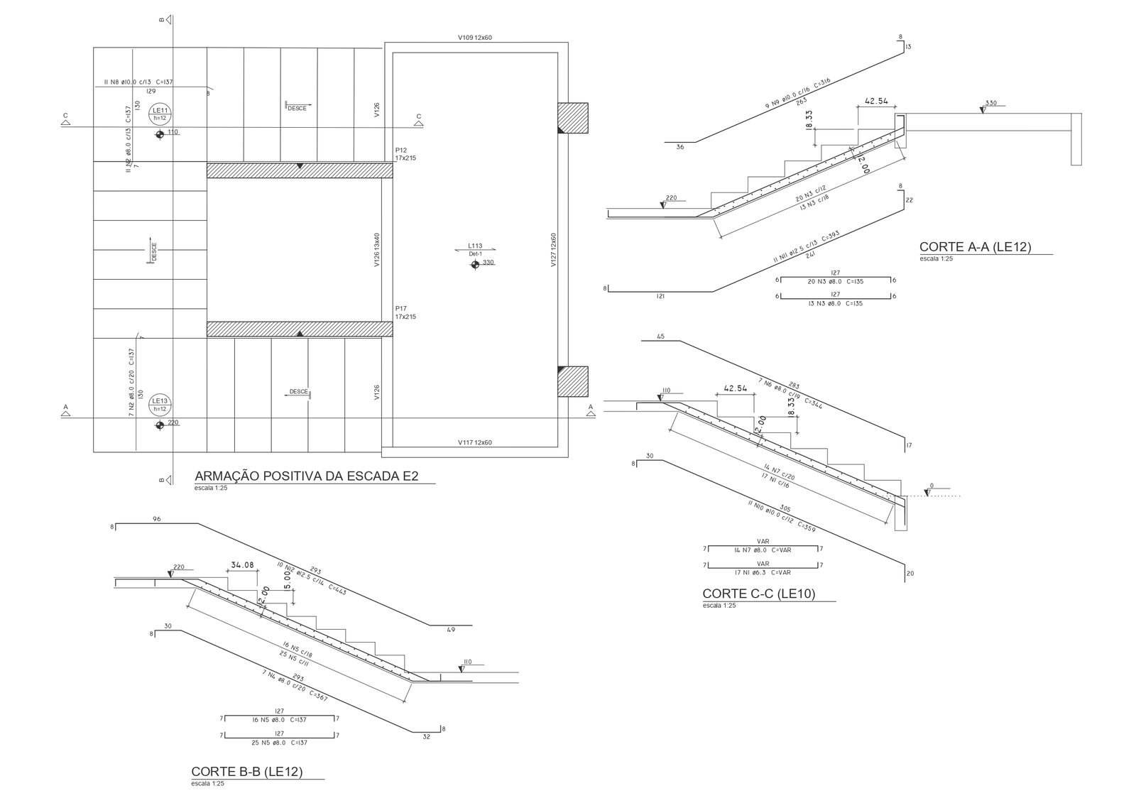
Explore a detailed AutoCAD drawing showcasing the plan, section, and elevation details of a C-shaped staircase design. This DWG file features comprehensive information on the layout and construction of a C-shaped stair, including precise measurements, dimensions, and material specifications. Dive into elevation and section views to understand the space planning and integration of the staircase within a residential or commercial setting. This CAD drawing is a valuable resource for architects, designers, and engineers looking to incorporate a C-shaped staircase into their projects. Access this AutoCAD file to optimize your design process, enhance space planning, and ensure accurate implementation of a C-shaped staircase that adds functionality and aesthetic appeal to any space. Unlock the potential of innovative stair design with this comprehensive and informative AutoCAD drawing.
Uploaded by:

