30x40 ft North facing three bhk house furniture layout plan DWG AutoCAD drawing
Description
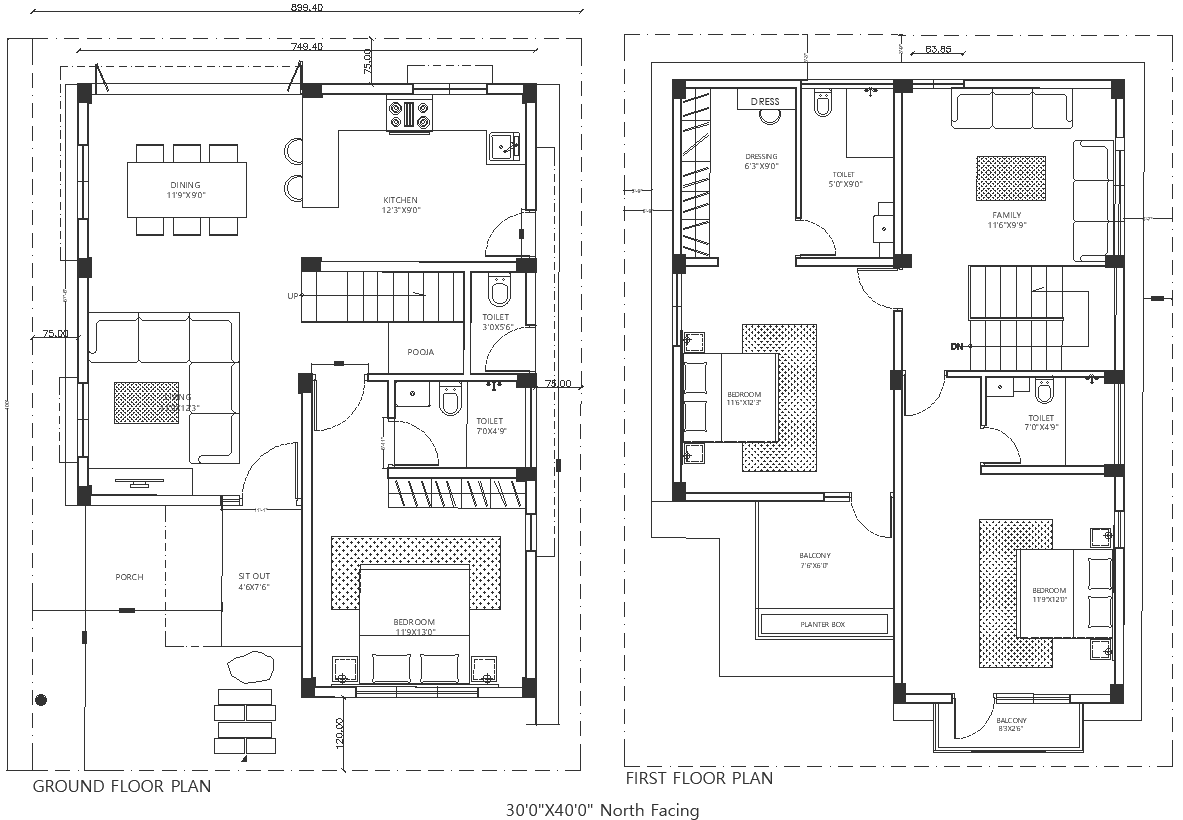
Explore the optimized furniture layout plan for a spacious 30x40 ft North-facing three-bedroom, hall, and kitchen (3 BHK) house with this detailed AutoCAD drawing. This plan offers a strategic furniture arrangement, enhancing the living spaces' functionality and aesthetics. Ideal for architects, designers, or homeowners, this drawing provides valuable insights into space planning, floor layout, and furniture details, ensuring an efficient and well-designed interior. Unlock the potential of urban residential design with this resourceful furniture layout plan, featuring bedroom configurations, kitchen details, and a comprehensive floor layout. Dive into the world of modern architecture and home planning through this detailed AutoCAD drawing, perfect for those seeking inspiration or practical guidance in house design and construction.
Uploaded by:

