Bedroom Main Door and Storage Door Detail DWG AutoCAD file
Description
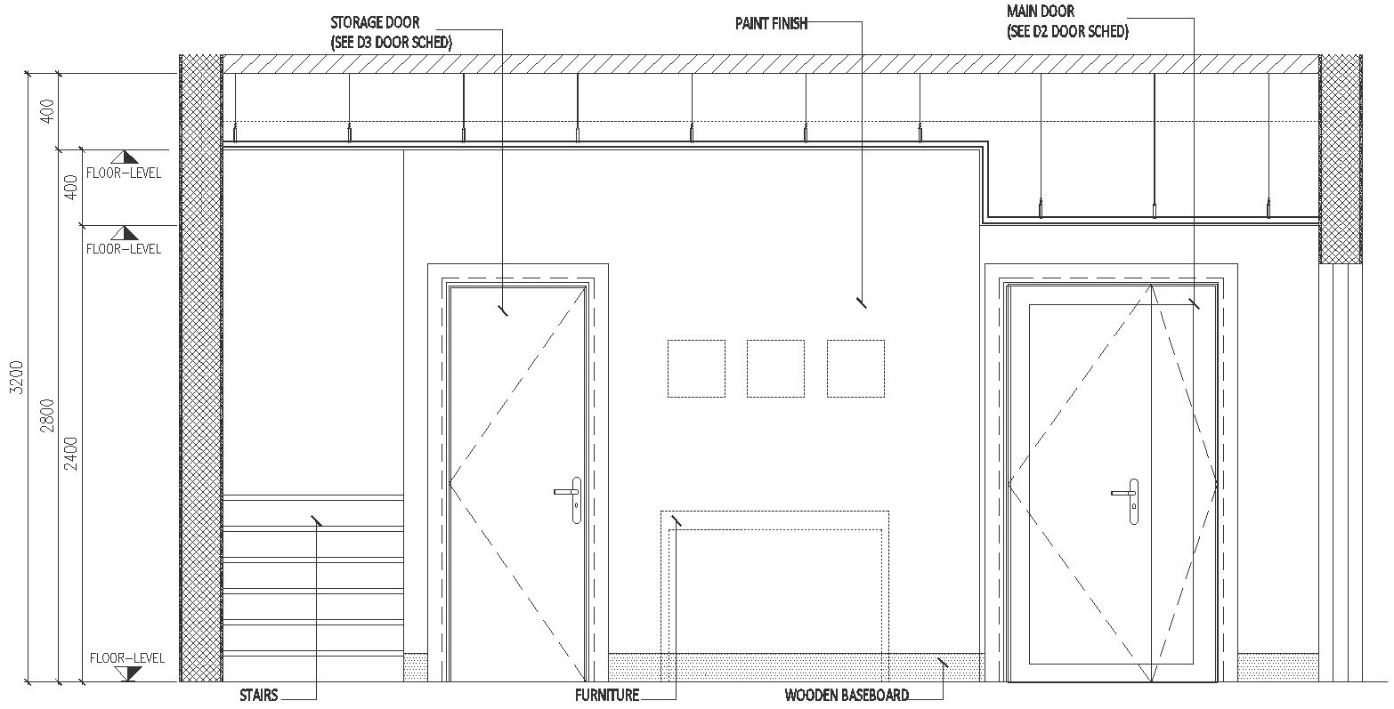
Discover intricate details for bedroom main doors and storage doors in this comprehensive DWG AutoCAD file. Immerse yourself in a world of precise 2D drawings that showcase the intricate designs and dimensions of these essential elements of your bedroom space. Explore the fine craftsmanship and functionality of each door, meticulously rendered for your architectural projects. Unlock a treasure trove of design inspiration with this meticulously crafted DWG file, perfect for architects, interior designers, and CAD enthusiasts alike. Dive into the world of CAD drawings and elevate your projects with ease. Enhance your design workflow with these detailed AutoCAD files, providing invaluable insights into door specifications and layout configurations. Elevate your bedroom design with the precision and convenience offered by these expertly crafted CAD files. Download now and revolutionize your design process.

Uploaded by:
Eiz
Luna

