LOGIN
HOME
CATEGORIES
UPLOAD FILE
PRICING
HOUSE PLAN
ABOUT US
CONTACT US
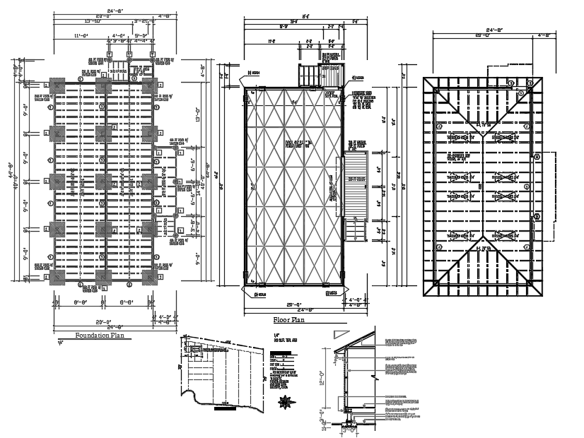
Beam and footing plan dwg file
Home
Categories
Structure
Footing Detail
Beam and footing plan dwg file
Uploaded by:
manveen
kaur
View Profile
View Profile
Description
Beam and footing plan with measurements also details of floor plan roof plan foundation plan and stair stringer detail footing and beam details.
File Type:
DWG
File Size:
108 KB
Category::
Structure
Sub Category::
Footing Detail
type:
Gold
Uploaded by:
manveen
kaur
View Profile
Download
Add to libary
find Latest
Related
Files