Back sectional view of administrative building dwg file
Description
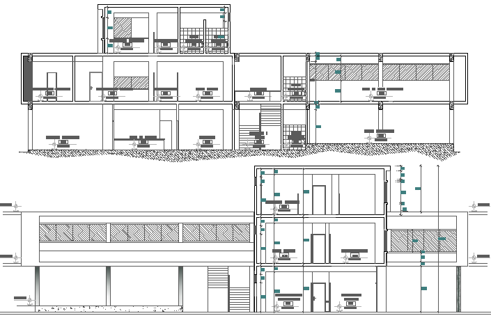
Back sectional view of administrative building dwg file.
Back sectional view of administrative building that includes a detailed view of back section of both cuts with floor view, doors and windows view, indoor and outdoor staircase view, roof or terrace view, reception area, office and much more of building section.
Uploaded by:

