Barbecue restaurant elevation, section and structure details dwg file
Description
Barbecue restaurant elevation, section and structure details dwg file.
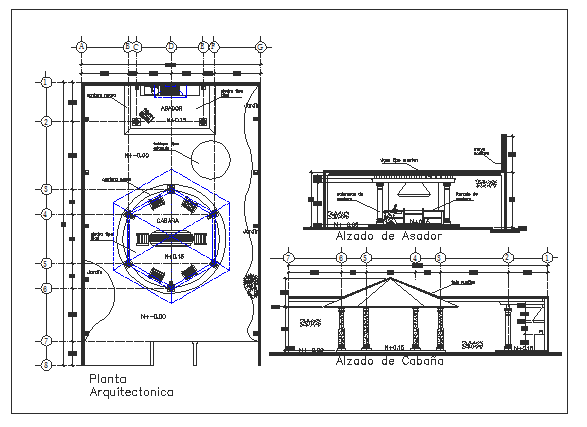
Barbecue restaurant elevation, section and structure details that includes a detailed view of front elevation with roof view, wall design, doors and windows view, sectional details with grill, fire place view, dining area and much more of barbecue restaurant details.
Uploaded by:

