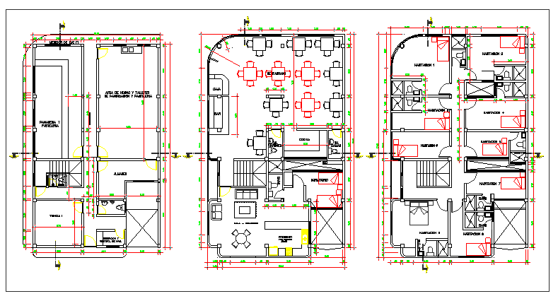
Floor plan layout of multi-flooring bungalow dwg file
Description
Floor plan layout of multi-flooring bungalow dwg file.
Floor plan layout of multi-flooring bungalow that includes a detailed view of ground floor, garden, car parking area, garden cafeteria, indoor staircase, main entry gate, living room, family hall, kitchen, dining area, bedroom, master bedroom, terrace, indoor furniture view and much more of floor plan details.
Uploaded by:

