LOGIN
HOME
CATEGORIES
UPLOAD FILE
PRICING
HOUSE PLAN
ABOUT US
CONTACT US
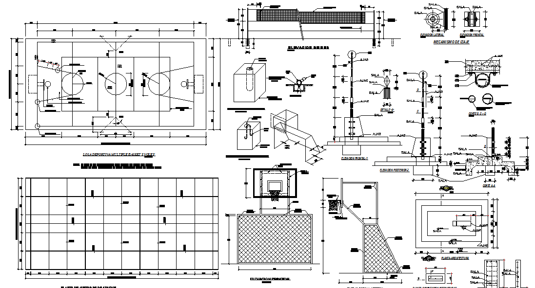
Play court area of college dwg file
Home
Categories
Architecture
Collage Drawing
Play court area of college dwg file
Uploaded by:
Dipika
View Profile
View Profile
Description
Construction detail layout plan dwg file, concrete detailing, cement pores, flooring layout in auto cad format
File Type:
DWG
File Size:
4.1 MB
Category::
Architecture
Sub Category::
Collage Drawing
type:
Free
Uploaded by:
Dipika
View Profile
Download
Add to libary
find Latest
Related
Files