Office commercial plan detail dwg file

Office commercial plan detail dwg file
Profile

Uploaded by:

Dhara

Description
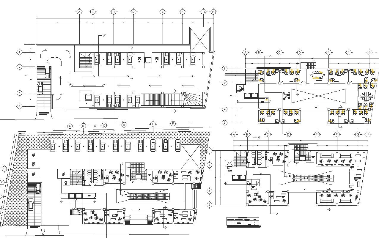
Office commercial plan detail dwg file, office commercial plan detail with furniture plan detail with chair and table, car parking detail, stair detail, table, toilet detail, etc.
Profile

Uploaded by:

Dhara

find Latest

Related Files

WhatsApp Chat