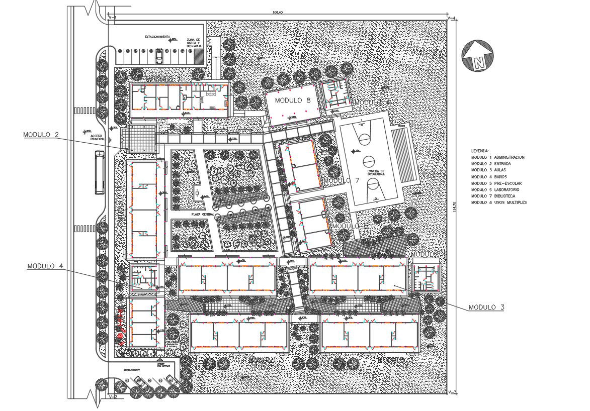
Urbanized school landscaping with structural layout plan details dwg file
Description
Urbanized school landscaping with structural layout plan details dwg file.
Urbanized school landscaping with structural layout plan details that includes a detailed view of main entry gate, car parking view, tree view, sports ground, green area, conference hall, meeting room, head office, toilets for staff, toilets for students, lobby, passage, canteen, kitchen, staircase, kids kinder garden, classrooms, computer lab, library, cultural hall view, classrooms, computer lab, library, cultural hall view and much more of school project details.
Uploaded by:

