LOGIN
HOME
CATEGORIES
UPLOAD FILE
PRICING
HOUSE PLAN
ABOUT US
CONTACT US
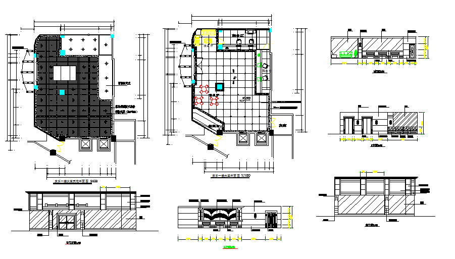
Recreation first floor lobby floor plan
Home
Categories
Architecture
Corporate Building
Recreation first floor lobby floor plan
Uploaded by:
zalak
prajapati
View Profile
View Profile
Description
Recreation first floor lobby floor plan, lobby lobby ceiling plan , The front elevation , A ramp, Side elevation ,B ramp , C ramp etc.
File Type:
DWG
File Size:
221 KB
Category::
Architecture
Sub Category::
Corporate Building
type:
Gold
Uploaded by:
zalak
prajapati
View Profile
Download
Add to libary
find Latest
Related
Files