LOGIN
HOME
CATEGORIES
UPLOAD FILE
PRICING
HOUSE PLAN
ABOUT US
CONTACT US
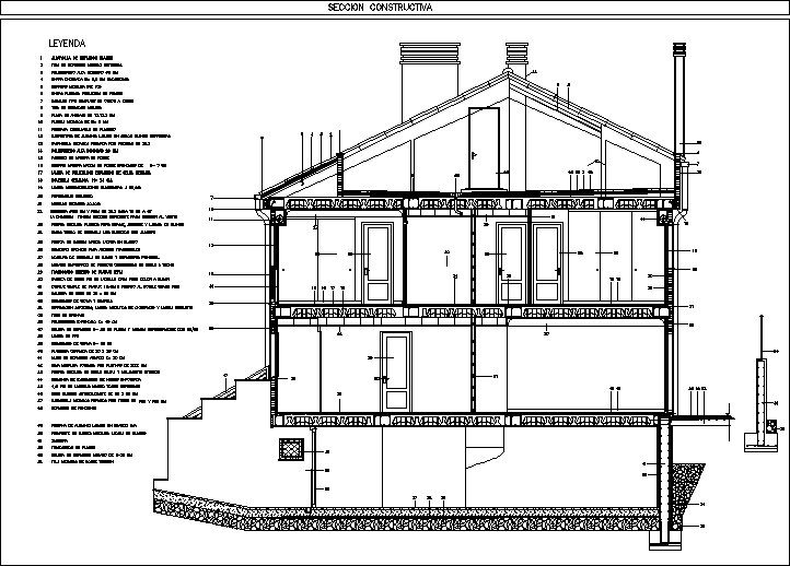
House section detail dwg file
Home
Categories
Architecture
House Plan
House section detail dwg file
Uploaded by:
Dhara
View Profile
View Profile
Description
House section detail dwg file, including specification naming detail, reinforcement detail, etc.
File Type:
DWG
File Size:
234 KB
Category::
Architecture
Sub Category::
House Plan
type:
Gold
Uploaded by:
Dhara
View Profile
Download
Add to libary
find Latest
Related
Files