LOGIN
HOME
CATEGORIES
UPLOAD FILE
PRICING
HOUSE PLAN
ABOUT US
CONTACT US
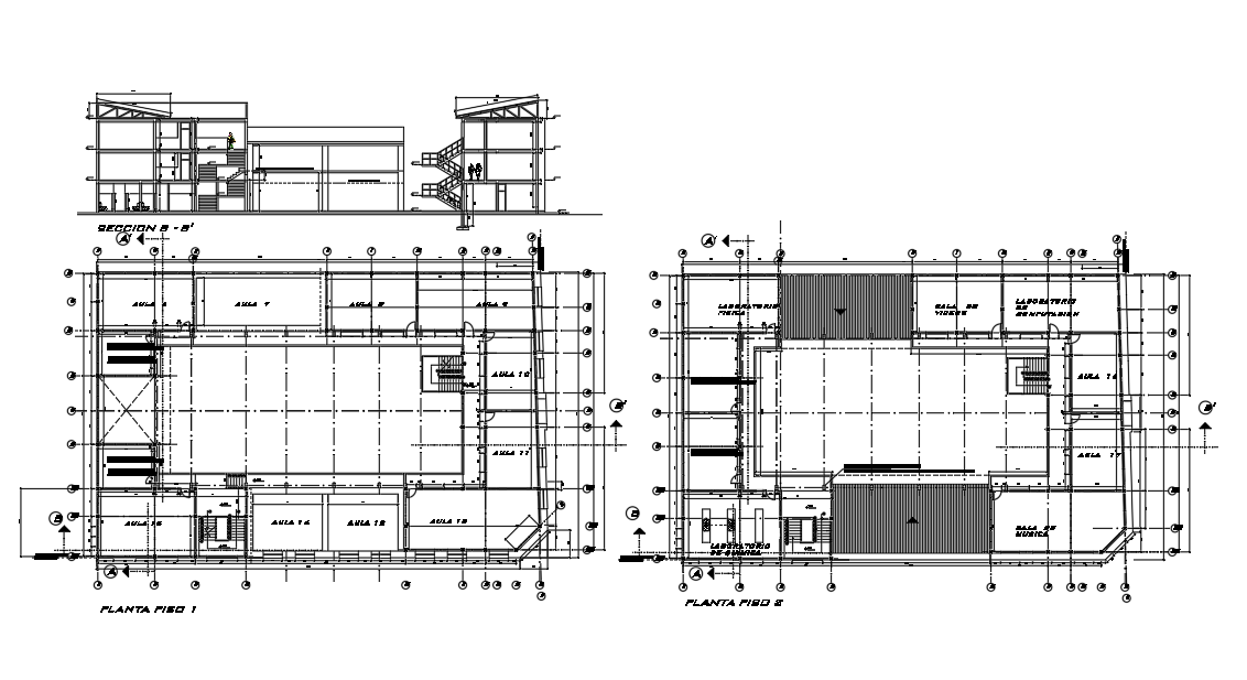
Structural plan and section plan detail dwg file
Home
Categories
Details
Construction Details
Structural plan and section plan detail dwg file
Uploaded by:
Dhara
View Profile
View Profile
Description
Structural plan and section plan detail dwg file, including section line detail, dimension detail, naming detail, section B-B’ detail, leveling detail, etc.
File Type:
DWG
File Size:
4.6 MB
Category::
Details
Sub Category::
Construction Details
type:
Gold
Uploaded by:
Dhara
View Profile
Download
Add to libary
find Latest
Related
Files