LOGIN
HOME
CATEGORIES
UPLOAD FILE
PRICING
HOUSE PLAN
ABOUT US
CONTACT US
Small Commercial Building Design Plans In AutoCAD Drawings
Home
Categories
Architecture
Mall & Shopping Center
Small Commercial Building Design Plans In AutoCAD Drawings
Uploaded by:
Chirag
View Profile
View Profile
Description
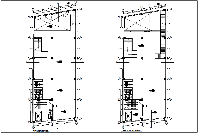
Small Commercial Building Design Plans In AutoCAD Drawings which shows the details of door and window design, washroom, floor level.
File Type:
DWG
File Size:
415 KB
Category::
Architecture
Sub Category::
Mall & Shopping Center
type:
Gold
Uploaded by:
Chirag
View Profile
Download
Add to libary
find Latest
Related
Files