LOGIN
HOME
CATEGORIES
UPLOAD FILE
PRICING
HOUSE PLAN
ABOUT US
CONTACT US
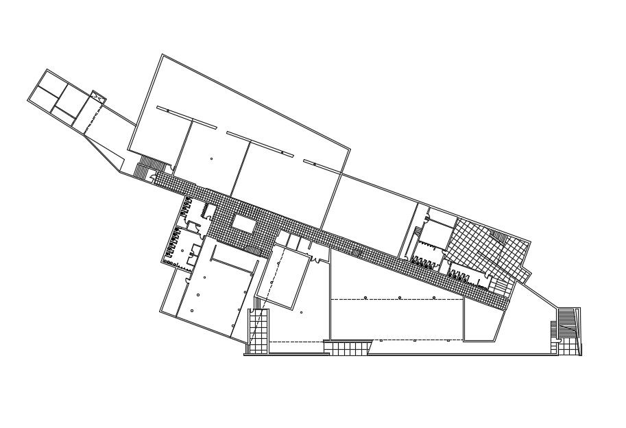
Museum Floor Plan In AutoCAD File
Home
Categories
Urban Design
Town Design And Planning
Museum Floor Plan In AutoCAD File
Uploaded by:
Vaas
View Profile
View Profile
Description
Museum Floor Plan In AutoCAD File which includes the details of floor plans, section and elevation, gallery design.
File Type:
DWG
File Size:
174 KB
Category::
Urban Design
Sub Category::
Town Design And Planning
type:
Gold
Uploaded by:
Vaas
View Profile
Download
Add to libary
find Latest
Related
Files