Mall and Theater DWG Design with Floor Layout and Section Plan
Description
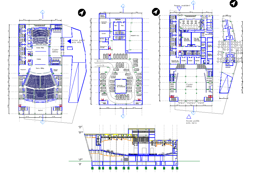
This Mall and Theater DWG design presents a complete architectural layout that integrates retail spaces with entertainment zones. The plan features multiple floor levels, including commercial shopping areas, cinema halls, food courts, and parking zones designed for efficient flow and accessibility. The drawing highlights a clear structural organization with service areas, public circulation paths, and emergency exits to ensure safety and functionality in high-traffic environments.
Created in AutoCAD, this DWG file provides accurate dimensions and sectional details, illustrating the relationship between different floors and public spaces. The theater layout includes audience seating, stage positioning, and foyer zones, ensuring optimal visibility and comfort. The inclusion of underground parking and lobby areas reflects a practical and modern approach to mixed-use commercial design. Ideal for architects, civil engineers, and planners, this Mall and Theater DWG layout serves as a professional reference for developing large-scale entertainment complexes with precise planning, spatial balance, and technical detailing suited for real-world execution.

Uploaded by:
Jafania
Waxy

