LOGIN
HOME
CATEGORIES
UPLOAD FILE
PRICING
HOUSE PLAN
ABOUT US
CONTACT US
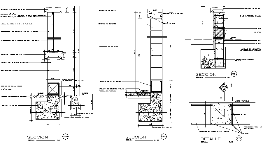
Reinforcement square frame detail dwg file
Home
Categories
Details
Construction Details
Reinforcement square frame detail dwg file
Uploaded by:
Dhara
View Profile
View Profile
Description
Reinforcement square frame detail dwg file, scale 1:25 detail, dimension detail, naming detail, bolt nut detail, etc.
File Type:
DWG
File Size:
152 KB
Category::
Details
Sub Category::
Construction Details
type:
Gold
Uploaded by:
Dhara
View Profile
Download
Add to libary
find Latest
Related
Files