LOGIN
HOME
CATEGORIES
UPLOAD FILE
PRICING
HOUSE PLAN
ABOUT US
CONTACT US
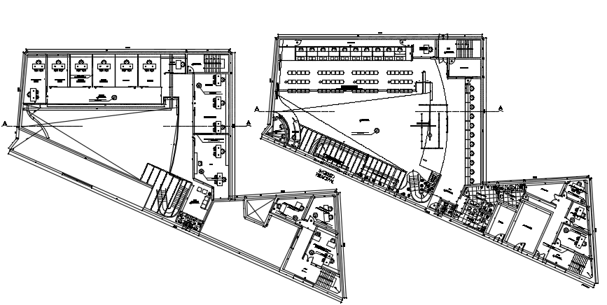
Office building plan detail dwg file
Home
Categories
Architecture
Corporate Building
Office building plan detail dwg file
Uploaded by:
Dhara
View Profile
View Profile
Description
Office building plan detail dwg file, including section line detail, dimension detail, naming detail, furniture detail with table, chair, door and window detail, etc.
File Type:
DWG
File Size:
526 KB
Category::
Architecture
Sub Category::
Corporate Building
type:
Gold
Uploaded by:
Dhara
View Profile
Download
Add to libary
find Latest
Related
Files