Fast Food Shop Interior Design with Kitchen and Service Layout Plan
Description
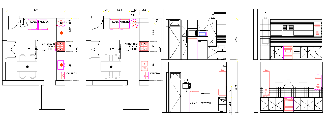
This Fast Food Shop Interior Design presents a detailed and well-planned layout that supports efficient workflow, quick service, and smooth customer movement. The drawing shows accurate placement of kitchen equipment, food preparation counters, storage areas, refrigerators, cooktops, freezers, and ovens, all arranged to improve safety and accessibility. Every section is designed to reduce staff travel distance and provide a comfortable working setup for fast-paced food operations. The layout also includes clearly marked dining areas, seating arrangements, and customer pathways, allowing designers to understand functional spacing in a compact shop design.
The plan further highlights the service counter, customer pickup zone, and essential circulation routes between the kitchen and front area to maintain a fast and organized workflow. The elevation details display cabinetry, appliance positions, and ventilation systems, giving architects and interior designers a complete visual understanding of the shop layout. This design is ideal for small restaurants, cafes, and takeout shops that require a balanced approach to space, functionality, and visual appeal. With precise interior detailing and practical room distribution, the layout supports efficient service, smooth staff coordination, and a well-organized fast food environment.

Uploaded by:
Liam
White

