LOGIN
HOME
CATEGORIES
UPLOAD FILE
PRICING
HOUSE PLAN
ABOUT US
CONTACT US
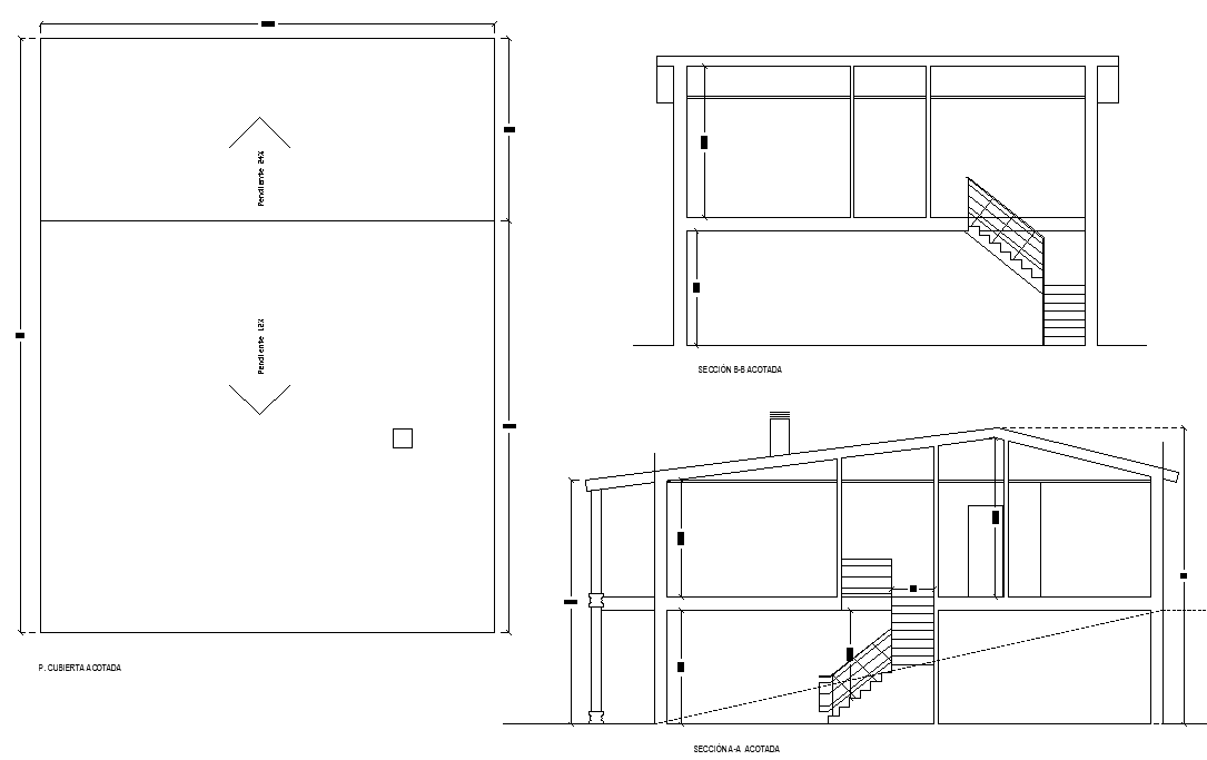
House plan and section detail dwg file
Home
Categories
Architecture
House Plan
House plan and section detail dwg file
Uploaded by:
Dhara
View Profile
View Profile
Description
House plan and section detail dwg file, including dimension detail, naming detail, stair detail, etc.
File Type:
DWG
File Size:
515 KB
Category::
Architecture
Sub Category::
House Plan
type:
Gold
Uploaded by:
Dhara
View Profile
Download
Add to libary
find Latest
Related
Files