LOGIN
HOME
CATEGORIES
UPLOAD FILE
PRICING
HOUSE PLAN
ABOUT US
CONTACT US
Country house planing detail dwg file
Home
Categories
Architecture
House Plan
Country house planing detail dwg file
Uploaded by:
Dhara
View Profile
View Profile
Description
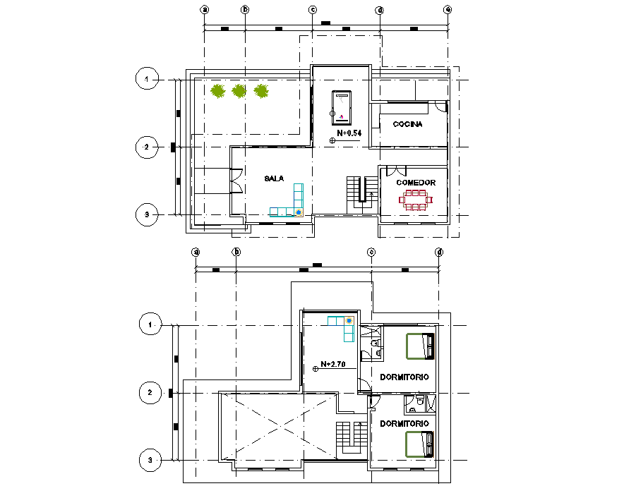
Country house planing detail dwg file, with centre line detail, dimension detail, naming detail, toilet detail, landscaping detail in tree and plant detail, etc.
File Type:
DWG
File Size:
737 KB
Category::
Architecture
Sub Category::
House Plan
type:
Gold
Uploaded by:
Dhara
View Profile
Download
Add to libary
find Latest
Related
Files