Section public administration building detail dwg file

Section public administration building detail dwg file
Profile

Uploaded by:

Dhara

Description
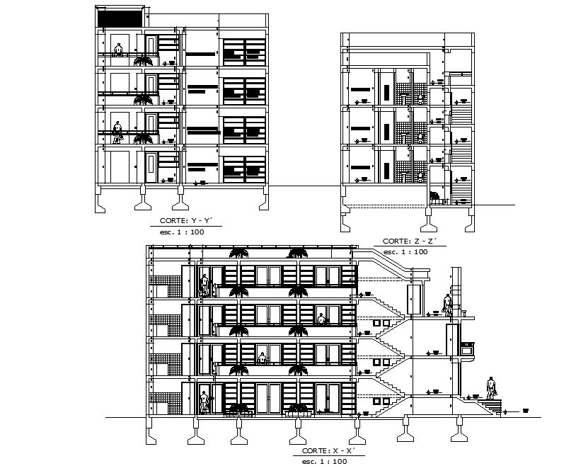
Section public administration building detail dwg file, including section X-X’ detail, section Y-Y’ detail, section Z-Z’ detail, dimension detail, naming detail, etc.
Profile

Uploaded by:

Dhara

find Latest

Related Files

WhatsApp Chat