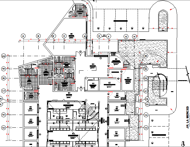
First floor plan layout details of industrial plant dwg file
Description
First floor plan layout details of industrial plant dwg file.
First floor plan layout details of industrial plant that includes a detailed view of main entry gate, guard cabin, mini garden, offices conference room, head offices, meeting room, kitchen, dining area, departments, service hall and much more of floor plan details.
Uploaded by:
