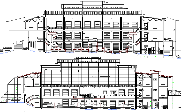
Front and back elevation details of urban industrial plant dwg file
Description
Front and back elevation details of urban industrial plant dwg file.
Front and back elevation details of urban industrial plant that includes a detailed view of front section, back section, car parking view, doors and windows view, flooring view, indoor and outdoor staircases, balcony, sanitary and much more of industrial plant.
Uploaded by:

